Rif: PIAZZA DEL POPOLO
ROMA
ROMA - zona Flaminio
Ottimo investimento a reddito in una delle location più belle e ad altissimo passaggio pedonale e automobilistico, tra Piazza del Popolo e Villa Borghese proponiamo la vendita delle mura di un locale commerciale, bar e gelateria di 80 mq, disposto su due livelli.
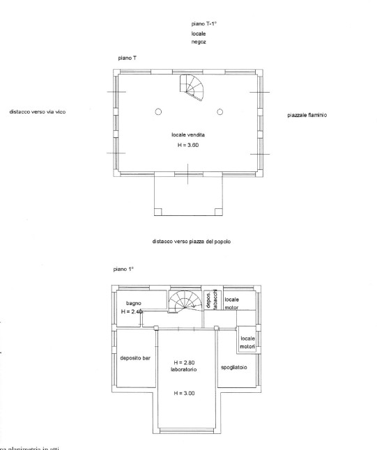
Il piano terra dispone di doppia entrata con visibilità a 360 gradi, grazie alle grandi vetrate disposte su entrambi i livelli, con enorme banco espositivo di ristoro e gelateria con posti a sedere.
Si accede al livello superiore con una scala a chiocciola interna, dove troviamo un locale deposito, uno spogliatoio, un laboratorio e un bagno.
Entrambi i livelli sono completamente climatizzati.
Completano la proprietà uno spazio esterno coperto di proprietà di circa 20 mq con tavoli annessi.
La durata del contratto di locazione in essere è di 6 + 6.
Ottima redditività annuale.
La richiesta di vendita è di Eu. 2.600.000,00
Per maggiori informazioni contattare i nostri uffici ai seguenti numeri : 339.3350505 06.89274537, oppure inviare una mail a galagroupre@gmail.com La Gala Group Real Estate è una società Leader che opera nel settore dell'intermediazione immobiliare da diversi anni, specializzata nel settore del commerciale, nelle Vendite e nelle Locazioni di prestigio, cura inoltre Fondi immobiliari per conto di un portfolio clienti selezionato e fidelizzatosi nel tempo, rappresentato dai più noti brand nazionali ed internazionali che operano nel settore dell'abbigliamento, della profumeria, delle calzature e della ristorazione. In un'economia globale, la visione lungimirante e le strategie di business innovative per un settore tradizionale e tradizionalista come l'immobiliare, hanno permesso alla Società di Distinguersi. Collegato al gruppo vi è un team di professionisti altamente specializzati, nello specifico la Gala Group Real Estate mette a disposizione della propria clientela molteplici figure professionali come gli architetti che oltre ad occuparsi di progettazione, esecuzione, direzione lavori, curano anche ogni aspetto tecnico ed amministrativo. Le informazioni, le immagini e le planimetrie presenti nell' annuncio sono meramente indicative e non costituiscono elementi contrattuali.
Il piano terra dispone di doppia entrata con visibilità a 360 gradi, grazie alle grandi vetrate disposte su entrambi i livelli, con enorme banco espositivo di ristoro e gelateria con posti a sedere.
Si accede al livello superiore con una scala a chiocciola interna, dove troviamo un locale deposito, uno spogliatoio, un laboratorio e un bagno.
Entrambi i livelli sono completamente climatizzati.
Completano la proprietà uno spazio esterno coperto di proprietà di circa 20 mq con tavoli annessi.
La durata del contratto di locazione in essere è di 6 + 6.
Ottima redditività annuale.
La richiesta di vendita è di Eu. 2.600.000,00
Per maggiori informazioni contattare i nostri uffici ai seguenti numeri : 339.3350505 06.89274537, oppure inviare una mail a galagroupre@gmail.com La Gala Group Real Estate è una società Leader che opera nel settore dell'intermediazione immobiliare da diversi anni, specializzata nel settore del commerciale, nelle Vendite e nelle Locazioni di prestigio, cura inoltre Fondi immobiliari per conto di un portfolio clienti selezionato e fidelizzatosi nel tempo, rappresentato dai più noti brand nazionali ed internazionali che operano nel settore dell'abbigliamento, della profumeria, delle calzature e della ristorazione. In un'economia globale, la visione lungimirante e le strategie di business innovative per un settore tradizionale e tradizionalista come l'immobiliare, hanno permesso alla Società di Distinguersi. Collegato al gruppo vi è un team di professionisti altamente specializzati, nello specifico la Gala Group Real Estate mette a disposizione della propria clientela molteplici figure professionali come gli architetti che oltre ad occuparsi di progettazione, esecuzione, direzione lavori, curano anche ogni aspetto tecnico ed amministrativo. Le informazioni, le immagini e le planimetrie presenti nell' annuncio sono meramente indicative e non costituiscono elementi contrattuali.
Consistenze
| Descrizione | Superficie | Sup. comm. |
|---|---|---|
| Principali | ||
| Negozio - piano terra | 40 Mq | 40 Mqc |
| Negozio - 1° piano | 40 Mq | 40 Mqc |
| Totale | 80 Mqc | |
