Rif: VEND LOC COM TUSCOLANA
ROMA
ROMA - zona Cinecittà
Nel quartiere tuscolano, zona ad altissimo flusso pedonale e veicolare, nelle immediate vicinanze della metro A Subaugusta, proponiamo la vendita di un ottimo locale commerciale di ampia metratura totalmente ristrutturato.
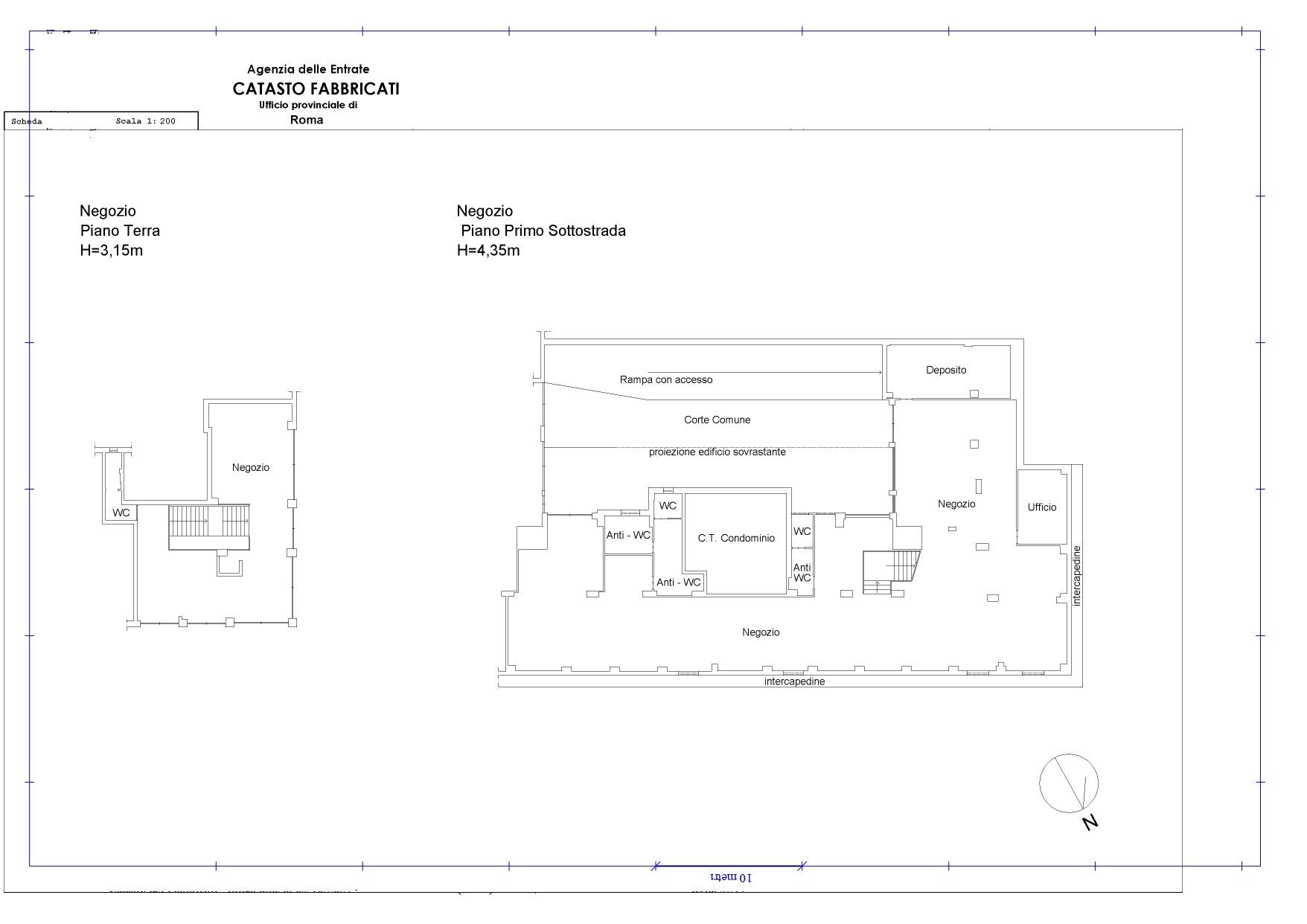
L' immobile sviluppa una superficie complessiva di 765 mq suddivisa in due livelli: ampio vano di 135 mq con vari espositori al piano terra, mentre al piano sottostante unico ambiente di 630 mq con locale deposito, ufficio, 3 bagni con anti bagno, oltre spaziosa corte esterna raggiungibile attraverso una rampa ad uso esclusivo.
La proprieta' gode di ottima visibilità grazie alle 7 vetrine angolari a alla posizione strategica.
Il locale si presta ad ogni tipo di attività commerciale, dall' abbigliamento alla ristorazione, grazie alla predisposizione per la realizzazione della canna fumaria.
Il prezzo di vendita è di Euro 1.190.000,00.
Per maggiori informazioni contattare i nostri uffici ai seguenti numeri : 339.3350505 06.89274537, oppure inviare una mail a galagroupre@gmail.com La Gala Group Real Estate è una società Leader che opera nel settore dell'intermediazione immobiliare da diversi anni, specializzata nel settore del commerciale, nelle Vendite e nelle Locazioni di prestigio, cura inoltre Fondi immobiliari per conto di un portfolio clienti selezionato e fidelizzatosi nel tempo, rappresentato dai più noti brand nazionali ed internazionali che operano nel settore dell'abbigliamento, della profumeria, delle calzature e della ristorazione. In un'economia globale, la visione lungimirante e le strategie di business innovative per un settore tradizionale e tradizionalista come l'immobiliare, hanno permesso alla Società di Distinguersi. Collegato al gruppo vi è un team di professionisti altamente specializzati, nello specifico la Gala Group Real Estate mette a disposizione della propria clientela molteplici figure professionali come gli architetti che oltre ad occuparsi di progettazione, esecuzione, direzione lavori, curano anche ogni aspetto tecnico ed amministrativo. Le informazioni, le immagini e le planimetrie presenti nell' annuncio sono meramente indicative e non costituiscono elementi contrattuali.
L' immobile sviluppa una superficie complessiva di 765 mq suddivisa in due livelli: ampio vano di 135 mq con vari espositori al piano terra, mentre al piano sottostante unico ambiente di 630 mq con locale deposito, ufficio, 3 bagni con anti bagno, oltre spaziosa corte esterna raggiungibile attraverso una rampa ad uso esclusivo.
La proprieta' gode di ottima visibilità grazie alle 7 vetrine angolari a alla posizione strategica.
Il locale si presta ad ogni tipo di attività commerciale, dall' abbigliamento alla ristorazione, grazie alla predisposizione per la realizzazione della canna fumaria.
Il prezzo di vendita è di Euro 1.190.000,00.
Per maggiori informazioni contattare i nostri uffici ai seguenti numeri : 339.3350505 06.89274537, oppure inviare una mail a galagroupre@gmail.com La Gala Group Real Estate è una società Leader che opera nel settore dell'intermediazione immobiliare da diversi anni, specializzata nel settore del commerciale, nelle Vendite e nelle Locazioni di prestigio, cura inoltre Fondi immobiliari per conto di un portfolio clienti selezionato e fidelizzatosi nel tempo, rappresentato dai più noti brand nazionali ed internazionali che operano nel settore dell'abbigliamento, della profumeria, delle calzature e della ristorazione. In un'economia globale, la visione lungimirante e le strategie di business innovative per un settore tradizionale e tradizionalista come l'immobiliare, hanno permesso alla Società di Distinguersi. Collegato al gruppo vi è un team di professionisti altamente specializzati, nello specifico la Gala Group Real Estate mette a disposizione della propria clientela molteplici figure professionali come gli architetti che oltre ad occuparsi di progettazione, esecuzione, direzione lavori, curano anche ogni aspetto tecnico ed amministrativo. Le informazioni, le immagini e le planimetrie presenti nell' annuncio sono meramente indicative e non costituiscono elementi contrattuali.
Consistenze
| Descrizione | Superficie | Sup. comm. |
|---|---|---|
| Principali | ||
| Negozio - piano terra | 765 Mq | 765 Mqc |
| Totale | 765 Mqc | |
